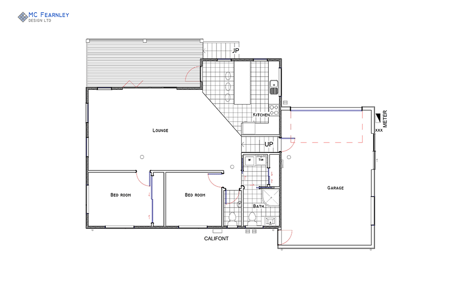
This new purpose built 131m2 house is situated in South bay, Kaikoura on a flat section.
The house is slightly elevated with a north facing aspect and bi-fold doors opening out to a deck. Exterior materials include Colorsteel roof, horizontal corrugate and Shadowclad.
There are 2 bedrooms with a spare toilet, internal access garage, plenty of storage and open plan living/ kitchen area.
Project is completed.
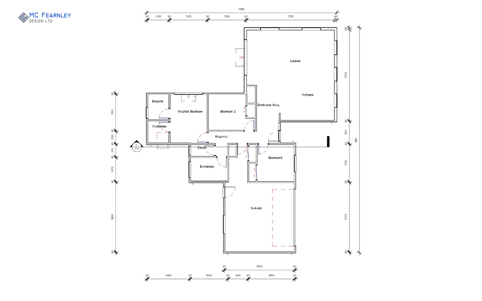
Ocean Ridge, Kaikoura
House is 167m2 including garage.
Flat section in subdivision.
Linea weather board and Shadowclad with 7° flat Colorsteel corrugated roof.
3 bedroom, master bedroom includes ensuite and walk in wardrobe, open plan living with kitchen island bench, and internal access garage.
North facing outdoor living / deck areas.
Harris Lane, Kaikoura – Shed
This is a large 12 x 15’ shed on a flat site in semi-rural Kaikoura.
It has a concrete foundations and floor, steel portals, Coloursteel roofing and cladding.
Kanuka Lane, Hapuku
This 2 bedroom home with large attached internal access garage has a simple profile with a 3° Coloursteel roof and double glazed windows and an exterior consisting of Resene paint waterproof membrane system. It has a wood burner in the living area, large north facing windows and an additional toilet in the garage area.



































